
Sunrise Homes would love for you to come see our gorgeous Showcase Home –
The Audubon B – that is available at Pine Creek Acres in Madisonville! This traditionally designed home is utterly charming, and ideally laid out for today’s active families.
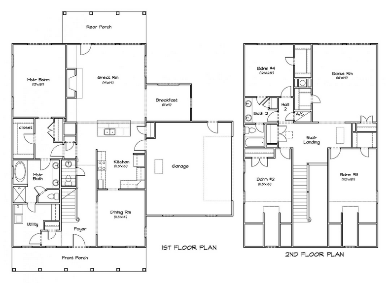
The two-story
Audubon B, located at 114 Pine Creek Drive, has 3,279 sq. ft. of living space, with 4 bedrooms, 2.5 bathrooms, and a 2-car side load garage. It has a huge kitchen with a breakfast nook, and a great room with a wood-burning fireplace. In the kitchen, you’ll also find maple cabinets, granite countertops, travertine tile backsplash, hardwood flooring, and stainless steel appliances.
The first floor master bedroom suite features a private bath and walk-in closet, as well as direct access to the laundry room. On the second floor, there are three spacious bedrooms, as well as an incredible bonus room. Whether it becomes a media room, a play room or a rec room, this will absolutely be THE place to hang out. The
Audubon B also has a formal dining room, a wide front porch, a rear covered porch and a carriage-style garage door. It is priced at $359,900.

Pine Creek Acres is located in Madisonville, West St. Tammany’s most up-and-coming area. It is adjacent to Madisonville’s brand-new Lancaster Elementary School. Other schools, shopping, dining, entertainment and recreation are just a hop, skip and jump away.
If you’d like to visit, directions from Slidell/Covington, Hammond/Baton Rouge, and New Orleans/Metairie are available at sunrisehomes.net.
For more information about
The Audubon B or any of our quick move-in homes, Sharon at 985.639.1958 or visit sunrisehomes.net! Drop us a line with feedback or questions. Don’t forget to check out our Facebook page, too!